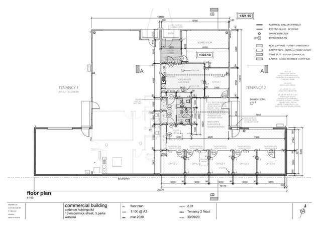
Perfectly positioned in the established end of Three Parks, this fully fitted office and showroom space will be ready for your business to occupy from mid-2026. Best of all, parking is a dream here, with your own exclusive entrance and six dedicated car parks to complement the 220sqm of single-level office space on offer.
The building provides a prime signage opportunity with excellent visibility from Sir Tim Wallis Drive and backs onto the new sports grounds currently being developed behind Three Parks. With established tenancies lining McCormick Street, you won't be surrounded by construction activity-allowing you to move in and enjoy the benefits of this comprehensive fit-out.
The layout includes six offices, a kitchenette and staff lounge, a boardroom/showroom, and exclusive-use amenities, with no shared common areas here.
Enquire today for further information and secure your business's future in Wanaka's fastest-growing commercial precinct, Three Parks.
To download the property documents, please visit https://rwwanaka.co.nz/WNK31979#documents