Masters Commercial Deal!
2 EMILY PLACE – Auckland CBD
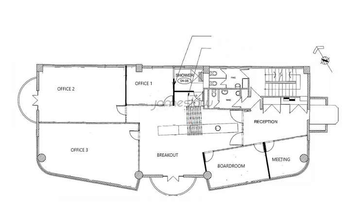
Affordable Full-Floor Office
A cost-effective full-floor tenancy in a central CBD location. Functional floor plate with good natural light, suited to a range of small to medium-sized businesses.
key Features:
. Level: 4
. Area: 225 sqm (approx.)
. Net Rent: $93,375 + GST pa ($415 psm)
. Opex: $34,425 + GST pa ($153 psm)
. Gross: $127,800 + GST pa
. Equivalent: $95 per person per week*
. Carparks: 1 available
. Availability: Now
Opportunities in this tightly held area don’t come up often—contact us today to lock in your future success!
Please be aware that this information has been sourced from external sources and/or third parties. View our disclaimer here: jameslaw.co.nz/disclaimer