This highly functional industrial building offers a large 2,499m² warehouse supported by ground floor office accommodation and a secure yard area. With drive through capability and an impressive 14 roller doors, the property is designed for efficient truck movement, streamlined logistics and high volume operational users.
The draft plan can be modified to suit the needs of the end user.
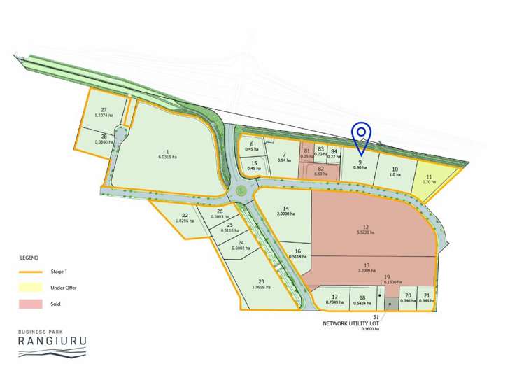
Located within the rapidly developing Rangiuru Business Park, this property represents an excellent opportunity for businesses requiring scale, access, modern industrial design and e4xcellent high volume profile.
Contact us today to discuss design features to cater to your needs.
Features:
* Warehouse: 2,499m²
* Ground floor office: 170m²
* Secure yard
* Drive through capable
* 14 Rollers doors
* Designed to suit