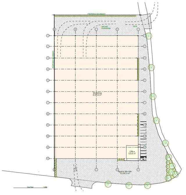
This substantial industrial facility offers an impressive 8,120m² of drive through warehouse space supported by well positioned office accommodation on both the ground and first floors. With ten roller doors, a canopy and the valuable benefit of a drive round site option, the property is designed for efficient logistics and high volume operational users. The site can accommodate buildings up to approximately 30,000m², so flexibility and growth is achievable.
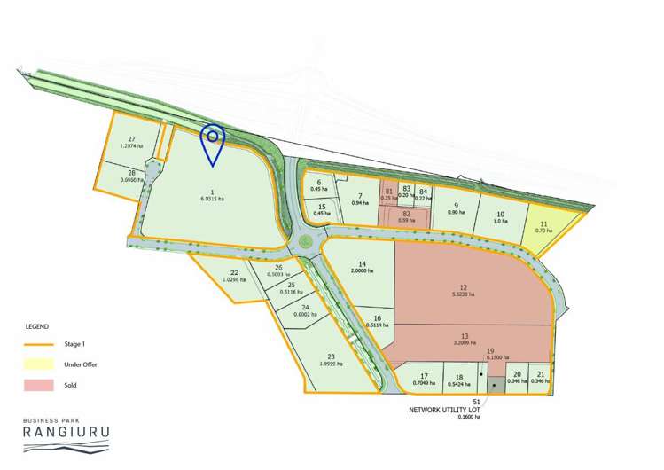
Located in the rapidly developing Rangiuru Business Park, this site offers large scale industrial space with excellent functionality and modern design.
Contact us today for further information or development specifications.
Features:
* Warehouse: 8,120m²
* Ground floor office: 123m²
* Upstairs office: 101m²
* 10 Rollers doors
* Canopies: 1,488m²
* Drive round option available