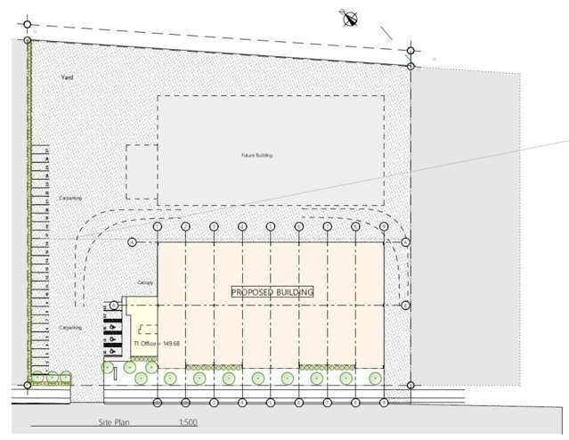
This modern industrial facility provides a well balanced mix of warehouse and office accommodation in the fast growing Rangiuru Business Park. Currently drafted with a warehouse of 2,504m² and office/amenities of 349m² this can be design to to suit the occupant. Warehouse is supported by quality office spaces across two levels, along with a dedicated reception area, meeting room and amenities to suit a wide range of operational requirements.
State Highway profile is available with intended road access for safety and ease of loading.
With six roller doors offering excellent access and workflow, this property is designed to support efficient logistics and users seeking a functional industrial solution.
Contact us today to discuss design tweaks to suit your needs or further information.
Features:
* Warehouse: 2,504m²
* Ground floor office: 149m²
* Upstairs office: 112m²
* Reception: 11m²
* Meeting Room: 27m²
* Amenities: 50m²
* Canopies: 144.5m²
* 6 Rollers doors
* To be built
* Designed to suit