394 Taurikura Drive, due for completion in June 2026, is a high-profile corner site that presents a compelling opportunity for occupiers and investors seeking architectural presence, flexibility, and modern design. The property has been thoughtfully designed by award winning architects Edwards White, delivering a visually striking asset to a calibre rarely seen in one of Tauranga’s fastest growing industrial precincts.
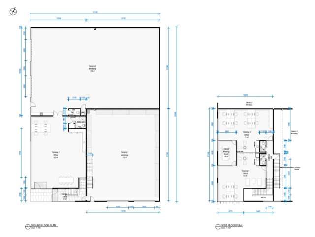
The building offers a versatile configuration, suitable as a single tenancy or split into two, appealing to a wide range of occupiers. Occupy one, lease the adjoining and lock in your future growth. The options are endless for owner occupiers and investors.
A high stud warehouse is complemented by well appointed office space, providing the optimum balance between operational and administrative requirements. Dual vehicle crossings enhance accessibility and drive through capability, while generous on site parking supports staff and visitors.
Positioned on a Tauriko arterial route, the property benefits from excellent connectivity to key transport networks and surrounding commercial hubs.
Contact Rich or Rachel if you would like more information.
Features:
* Floor area: 866m² (approximately)
* Land area: 1,866m²
* Close to State Highway 29
* High spec
* Brand new build, completion June 2026
* 615m² high stud warehouse
* 251m² high spec office
* Corner site with dual access
* Two vehicle crossings
* Flexible layout for one or two tenancies
* Designed by Edwards White architects
* 15 onsite car parks