Positioned within Station Court alongside established professional firms including BDO and HEB Construction, 74 Station Street presents a soon-to-be redeveloped office opportunity ideally suited to small and mid-sized businesses seeking quality CBD accommodation.
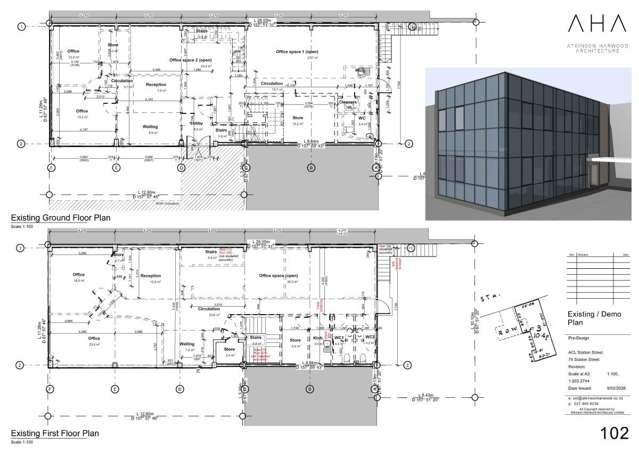
The building offers flexible leasing options, with the 147.4m² ground floor comprising approximately 122.5m² of predominantly open plan office space, complemented by staff amenities and a dedicated break-out area. The 151.9m² first floor is configured in a similar manner, providing 130.1m² of open plan workspace, amenities, and the added benefit of an optional balcony. Occupiers also have the opportunity to secure both floors, creating a cohesive two-level premises with scope for a bespoke fit-out and true “blank canvas” design tailored to specific operational requirements.
Located in a rapidly evolving pocket of Napier’s CBD, the property benefits from surrounding civic investment, including the new Napier Library and Civic Centre development. Station Court remains a popular professional precinct, favoured by service firms, government agencies and retailers for its accessibility and plentiful on-street parking.
Contact Ash for further details on this exciting opportunity.
Features:
* 295.3m² floor Area • Ground and First Floor
* Ground and First Floor Tenancies
* >67%NBS
* Tenant Input into Design