Now available for lease, this 550sqm* first-floor office space at 55 Ferry Road offers an exceptional opportunity within the Four Avenues, just a short walk from the CBD, Ara Institute, and Te Kaha Stadium.
Boasting an extensive existing fit-out, the premises includes various large training/boardrooms rooms, private offices or meeting rooms, most with independent access. Two kitchenettes, toilet facilities, and ample storage further support functionality. The space is fully equipped with HVAC, fibre, power cabling, and blinds, providing a true turn-key solution.
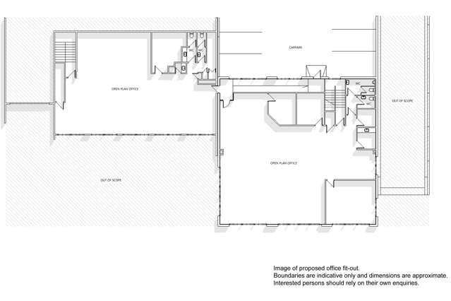
The site includes 20 on-site car parks, with secure, independent access directly into the premises.
A motivated landlord is open to reconfiguring the layout to an open-plan format or splitting into two smaller tenancies of 300sqm* and 250sqm*. Offered at some of the most competitive rental rates inside the Four Avenues, this office is ideal for NGOs, charitable organisations, or cost-conscious occupiers seeking a well-located and ready-to-occupy workspace.
Available now – contact me today to inspect.
Boundaries are indicative only and dimensions are approximate. Interested persons should rely on their own enquiries.