Secure your position in one of New Zealand's most connected and fast-growing industrial hubs.
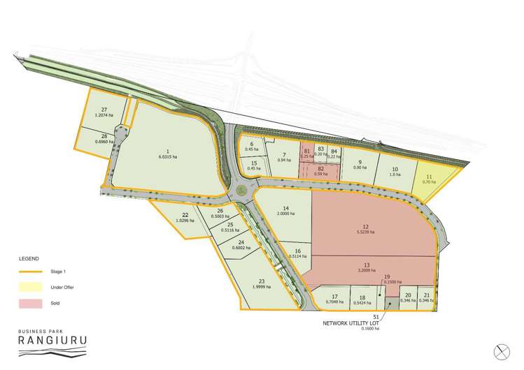
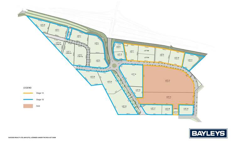
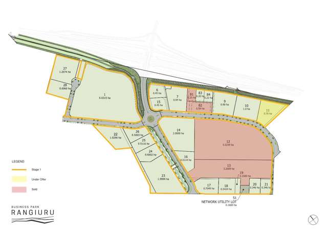
Stage 1 of the Rangiuru Business Park is now selling - approximately 14 hectares of freehold industrial land, with titles expected in the next few months.
Strategically located near the Tauranga Eastern Link, the Park offers direct access to the Golden Triangle of Auckland, Hamilton and Tauranga, and is just 25 minutes to the Port of Tauranga. A new motorway interchange and supporting infrastructure are under construction, ensuring seamless logistics and visibility for businesses.
Key Highlights:
- Flexible lot sizes to suit a range of industrial uses
- Freehold titles - secure land ownership
- Development partnerships available with long-term lease options
- Zoned Industrial - suitable for warehousing, manufacturing, logistics, and more
- Access to skilled local labour within a 15-minute commute
- High-growth region with strong infrastructure investment and population growth
Rangiuru Business Park presents a rare opportunity for industrial occupiers to secure a strategic foothold in one of the Bay of Plenty's most exciting growth zones. Positioned just minutes from the Tauranga Eastern Link, the park offers unrivalled connectivity to the Port of Tauranga, the wider Bay of Plenty, and key transport corridors across the North Island. With generous lot sizes, modern infrastructure, and future-proofed zoning, Rangiuru is purpose-built for high-performing businesses seeking scale, efficiency, and long-term growth. This is a chance to be part of a master-planned industrial precinct set to become a major logistics and manufacturing hub for the region.
Backed by Quayside Holdings, the investment arm of the Bay of Plenty Regional Council, this is your opportunity to partner with an experienced, long-term developer committed to sustainable regional growth.
Be among the first movers and build your future in the Bay of Plenty's next premier business location.
Enquire now for pricing, lot availability, or to discuss tailored development solutions.
* All images are concepts/renders only