NAI Harcourts is delighted to offer this high-stud warehouse and office facility for lease at 65 Walls Road, Penrose, Auckland.
This modern industrial complex is designed for operational efficiency, high visibility, and flexible warehouse solutions, ideal for logistics, distribution, or storage operators.
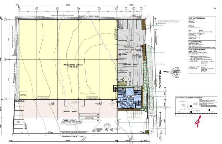
Property Features:
• Warehouse: 2,398sqm - 10m stud at portal knee, 12m centre, clear span, full height precast walls
• Office: 304sqm - two levels, air-conditioned, carpeted, excellent visual connectivity to warehouse
• Canopy: 550sqm - covered loading/unloading areas for trucks
• Land Area: 4,563 sqm with concrete yard
• Carparks: 20
• Racking Capacity: 3,336 pallet spaces, aisles 2.3m wide, stacking up to 6 pallets
• Floor Loading: 30kPa UDL post-tensioned jointless concrete
With high exposure, excellent vehicle access, and a safe, separated office carpark, this property offers an ideal leasing opportunity for businesses requiring a large-scale warehouse with functional office space.
Contact: Tarun at 022 454 7881 to arrange a viewing or discuss lease terms.