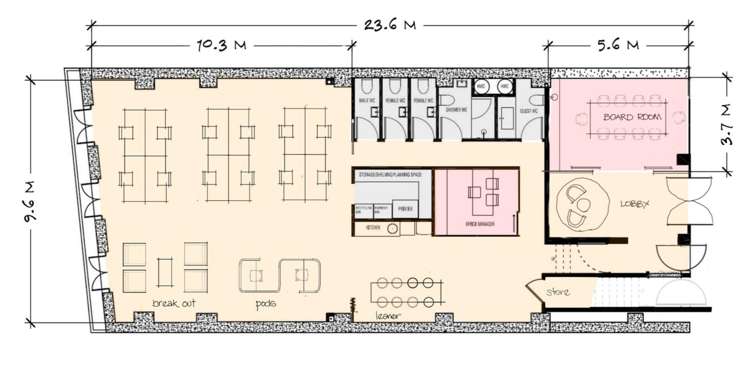
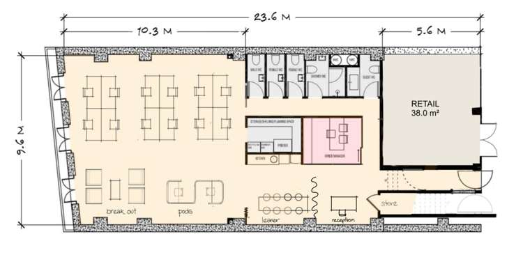
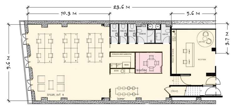
Located on the vibrant Little High Street laneway, this ground floor space in the historic Lewis Eady Building provides a true turnkey solution in the heart of the CBD. The tenancy is fully fitted, featuring workstations, meeting room, reception, kitchen, breakout area and upgraded end-of-trip facilities.
The wide shopfront opens directly into the arcade, giving excellent public exposure and allowing tenants to showcase products or branding. The upcoming Victoria Street CRL station (opening 2026) will significantly increase pedestrian movement through the area.
Key Features
• 182 sqm of office space (approx.)
• 38 sqm of showroom/reception with strong public profile
• Fully fitted with workstations (12 installed, capacity for up to 32)
• Space to add boardroom or extra meeting rooms if required
• Refurbished bathrooms and shower
• Air-conditioned, carpeted, bike storage
• On-site Mezze Bar
• Car park available at $280 + GST per month
Surrounded by cafés, retail and cultural hotspots, this character space offers convenience, visibility and immediate usability. Ideal for professional services, creative studios, medical/wellness clinics or any business wanting a central, level-access office with excellent exposure.