Find a property
Residential
New Homes
Commercial
Rural
Businesses
Rent
Estimates
News
Tools
Find an agent
Find a sold property
Find a suburb
First home buyers
Property report
House price report
Home sellers guide
New-builds guide
Homes We Love
Home Loans
Back
Sold
Wellington
Wellington City
Wellington Central
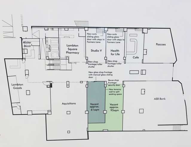
102/180 Lambton Quay
102/180 Lambton Quay, Wellington Central, Wellington City
About the area
More properties for lease
Price on Application
Shop 112/180 Lambton Quay, Wellington Central
Please contact agent
Ground level, 86-96 Victoria Street, Wellington Central
Please contact agent
Ground Floor, 180 Lambton Quay, Wellington Central
Price by Negotiation
180 Lambton Quay, Wellington Central
Price on Application
Shop 108/180 Lambton Quay, Wellington Central
Please contact agent
Ground Floor, 180 Lambton Quay, Wellington Central
Latest commercial news
Latest News
Nikki Preston
Classic Auckland campground eyes Kiwi buyer after getting 'affordable' price tag
Commercial
OneRoof
Corporates flock to NZ’s leading innovation precinct
Commercial
OneRoof
Best-in-class industrial in Northwest
Commercial
OneRoof
Compelling terms for Whangarei building
Commercial
OneRoof
Rare private South Island landholding
Commercial
OneRoof
Silverdale strip ripe for development
Commercial
OneRoof
Commercial real estate turns page on 2025
Commercial
OneRoof
Trophy sites atop Queenstown Hill
Commercial
OneRoof
Premier Hawke’s Bay homestead for sale
Commercial
OneRoof
Points of difference in Christchurch
Commercial
OneRoof
Matakana lifestyle park with serious play
Commercial
OneRoof
Industrial workhorse with a bright future
Commercial
OneRoof
Strong returns for workspace investments
Commercial
OneRoof
Dairy farm market shows strong resurgence
Commercial
OneRoof
Cooper departs Colliers after 35 years
Commercial
OneRoof
Premium city-fringe investment with well-known tenant