The Hope Gibbons Building is a character building that has been refurbished providing great outlook and access to the Courtenay precinct.
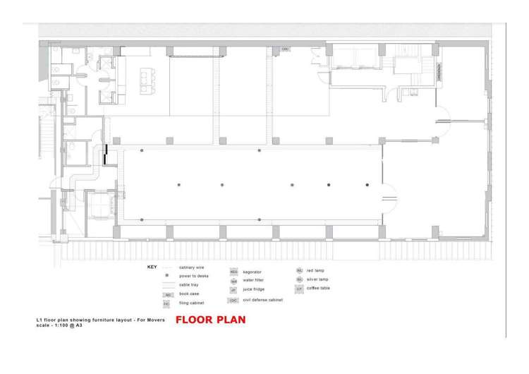
Level 1 is available for 'sublease' or on a direct lease basis (sublease until Dec 26). A high quality existing fit out recently renovated in 2024. High stud exposed ceiling with stunning Courtenay Place views and natural light, contains two entrance points, one off Dixon and one off Taranaki (both via lifts), toilets and two showers per floor. Floor contains a large presentation room, meeting room and a large open plan area with breakout kitchen.
__
Can't find the right space for you?
We currently have other options available in the Wellington CBD and city fringe. Contact us for help finding the right environment for you and your business.