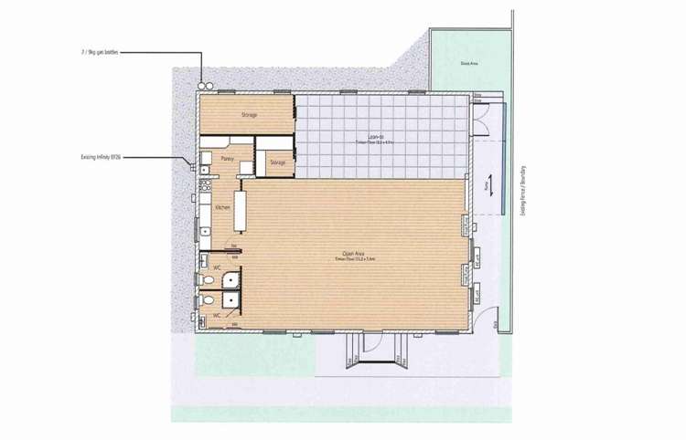
• Spacious 180m2 open-plan layout
• 2 bathrooms
• Functional kitchen area
• Ample storage space
Unlock the potential of this versatile 180m2 commercial space, ideally suited for office, professional services or retail use. Perfectly positioned just off Shakespeare Street and only moments from the heart of Leamington's retail hub, this property offers the convenience and flexibility for a wide range of commercial activities.
Contact us today to discuss leasing options.