Are you a professional looking to expand or establish your business in a high-visibility location?
This character-filled Huntly brick home, thoughtfully converted into a functioning physiotherapy clinic, offers a rare opportunity to secure a commercial property in a high-exposure location with excellent road frontage.
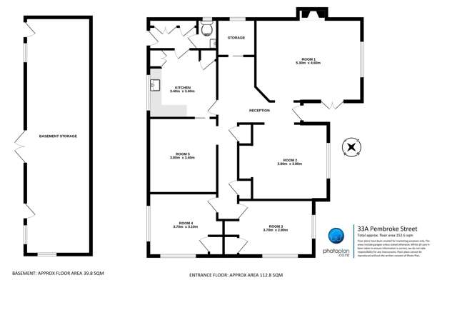
Inside, you'll find a series of well-configured treatment rooms – not oversized but efficiently laid out to serve clients comfortably and professionally. The space is move-in ready, which aside from its current use would also serve other allied health services, as well as offices for a range of professional end uses, such as accountant businesses, solicitors, and the like.
• Prime visibility from passing traffic
• On-site car parking – a major convenience for clients and staff
• A welcoming reception area and clinical rooms already in use
• Expansion potential into the basement area, allowing you to scale your services as your business grows
Whether you’re just getting started or planning your next move, this property is a solid foundation with room to grow.
Opportunities like this don’t come often. Whether you're relocating, expanding, or launching a new business, this property is ready to support your success from day one.
Contact us today to arrange a private viewing and take the next step toward growing your business in a location designed to deliver.
Plus GST (if any)