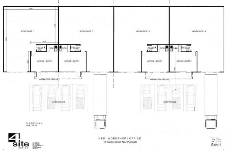
Position your business for efficiency with this well-presented and practical 120m2 workshop or warehouse space, ideal for trades, storage, or light industrial use.
The premises includes a tidy 20m2 office fitted with air conditioning - perfect for admin or client-facing work - while the main warehouse benefits from excellent natural and LED lighting, creating a bright and productive environment.
Access is easy via a full-height electric roller door, and the property is supported by two on-site car parks for staff or customers.
Additional features include fibre connectivity for fast, reliable internet and a security alarm system for peace of mind.
Key Features:
•120m2 total floor area
•20m2 air-conditioned office
•Fibre internet available
•Alarm system installed
•Electric roller door access
•LED lighting throughout
•Two dedicated car parks
A versatile, low-maintenance space that will suit a wide range of users.
Available from 1st August 2026.
Get in touch today to arrange a viewing - spaces like this don't sit around for long.