82 & 86 St Andrew Street have always appealed as a location for any smaller retailer and they have never remain available for lease for long. Current tenant Relics - Purveyors of Musical Artifacts has occupied 86 St Andrew Street since October 2013 and as they grew they leased 82 St Andrew Street for Relics Hifi, this was back in July 2020. And now after 12 years successful trading they are moving to George Street and a large shop they can fit both businesses into. We wish them all the best.
Your options to lease either 82 or 86 St Andrew Street are;
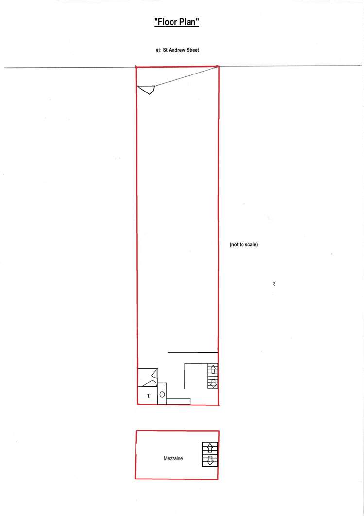
• Floor area: 118.0m2 - 93m2 mainly retail space and office/kitchenette/toilet/storage at the rear plus mezzanine of 25m2, 82 St Andrew Street.
• Great street profile with glass frontage to display and promote your business.
• Heat pump in each unit
• Small basic kitchenette(s) facilities
• Foot traffic is high, they come from George Street and the Bus Hub on Great King Street flowing either way.
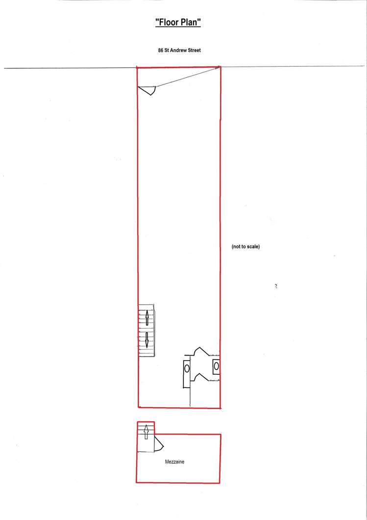
• 86 St Andrew: Total floor area 107m2, retail 93m3, mezzanine 14.0m2
• Each unit is for lease @ $17,000 + GST + outgoings
If you are looking for an affordable rental rate then either 82 or 86 St Amdrew Street will appeal. Ring Jim Packer 0274 500 498 today for your inspection.