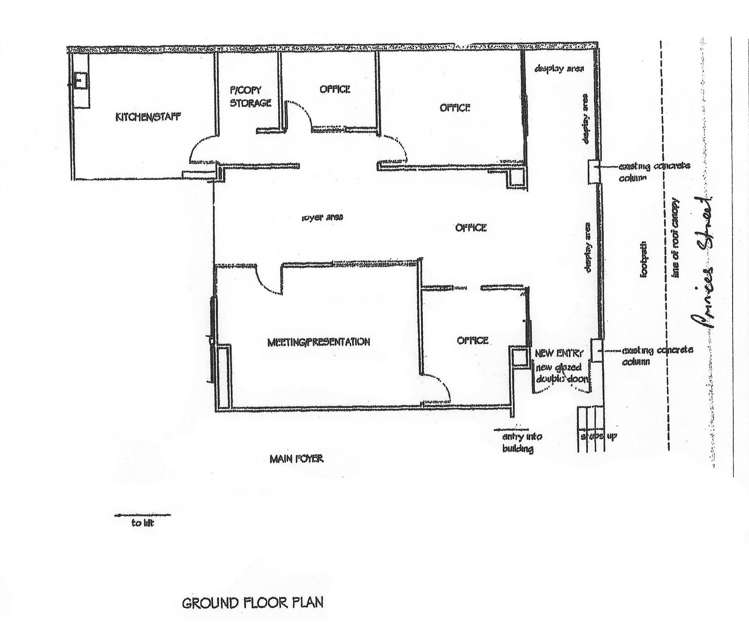
An accessible office suite located on the ground floor at 155 Princes Street is now available for lease. This space includes three private offices, an open-plan work area, a kitchenette, and a foyer/reception area. Located between the Octagon and the Exchange, making it easy to get to appointments or clients to meet onsite and surrounded by quality tenants. The suite is well-lit and offers attractive leasing rates.
• Asking Rental: $28,200 per annum (gross), plus GST
• Carparks: Two onsite carparks available at $40 per park, per week, plus GST
For more information or to schedule a viewing, please get in touch today.