Unlock the potential of your business with this exceptional industrial property located at 7 Kepa Road, Ruakaka.
Small workshops like this are always sought after. Located in a little industrial hub, servicing much of Ruakaka, this one is a must see.
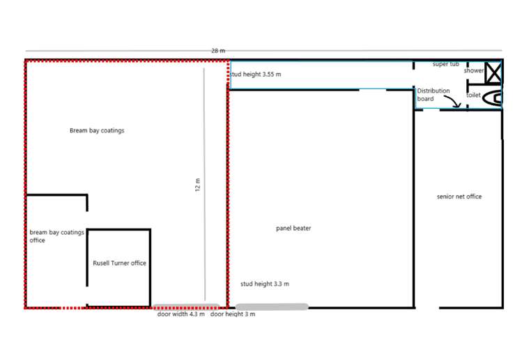
With 188.86sqm of floor area, 144sqm being warehouse area, 44sqm of office space and 9.7sqm of common space, and shared amenities.
This type of industrial property is in hot demand, so don't delay, contact us today for more information or to schedule a viewing!