Positioned in the heart of Blenheim's CBD, this high-visibility property delivers secure, low-maintenance income and genuine set-and-forget appeal for investors.
Located at 77 Queen Street, the asset occupies a prime central position surrounded by active retail and hospitality operators, ensuring strong foot traffic and long-term tenant demand.
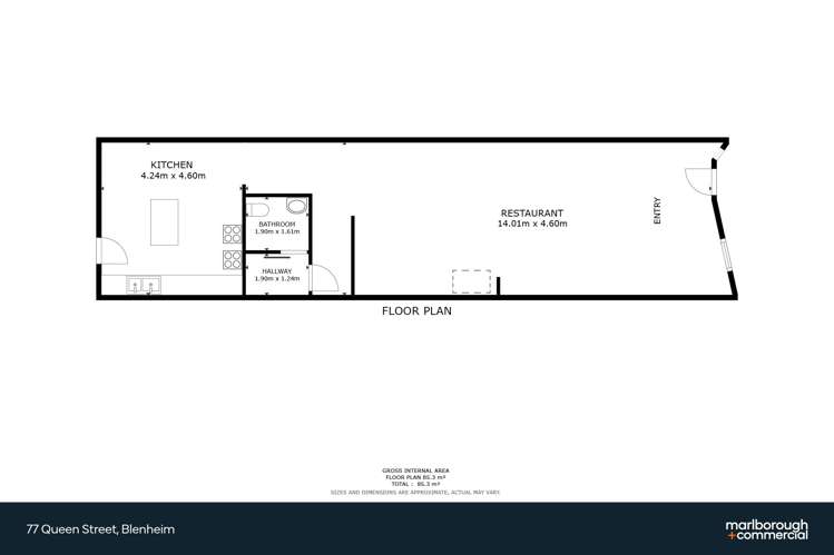
The premises comprises 85sqm (more or less) and is currently leased to the well-established A-J's BBQ Restaurant following a lease assignment.
The building has recently been seismic strengthened to at least 67% NBS, significantly improving buyer confidence and lending appeal.
Secured by a 6 + 6 year lease with a combination of CPI and market rent reviews, the property generates a net annual rental income of $26,561 plus GST and Outgoings, delivering an attractive cap rate of approximately 6.35% at the asking price of $418,000 plus GST (if any).
This represents an excellent opportunity for both first-time commercial investors or those seeking a simple, centrally located asset with reliable income and minimal ongoing management.
Key features
• Prime high-visibility Queen Street CBD location with established foot traffic
• 85sqm (more or less) fully leased to a proven hospitality operator
• Recently seismic strengthened to 67% NBS with 6 + 6 year lease in place
For Sale $418,000 plus GST (if any)