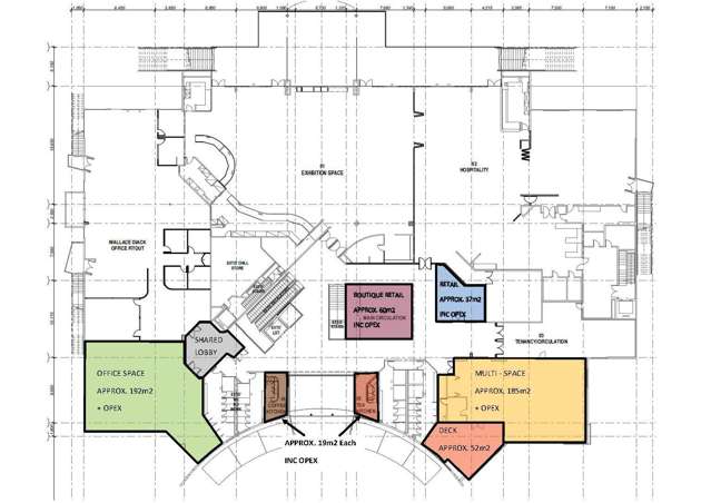
Modern 185sqm (more or less) office space
The Alfred Taylor development offers a unique opportunity to position professional office tenants at the heart of Blenheim’s newest mixed-use hub.
This modern 185sqm (more or less) office space offers flexible layouts, abundant natural light, and the efficiencies of a new-build environment. This space also has a stunning 55sqm (more or less) outdoor balcony, with views over Blenheim town.
This space offers you the flexibility to design and specify a contemporary work environment that reduces running costs and creates healthier, more productive workplaces. At present, this is an empty space, requiring a fit-out by the new lessee.
Situated in the heart of Blenheim’s commercial growth zone, with easy access to the town centre, transport routes, and Marlborough’s newest food and wine hub.
Offices in mixed-use developments like this are highly attractive to professionals who want visibility without being tucked away in older secondary office stock.
Lease $56,900 plus GST and Outgoings
Available now - enquire today to view!