Opportunity to lease brand new retail and business premises in the rapidly growing township of Lincoln.
Well located near the New World Supermarket and within the growing business hub that Vernon Drive is quickly becoming, as well as being in close proximity to the Lincoln University campus and its 5800* students.
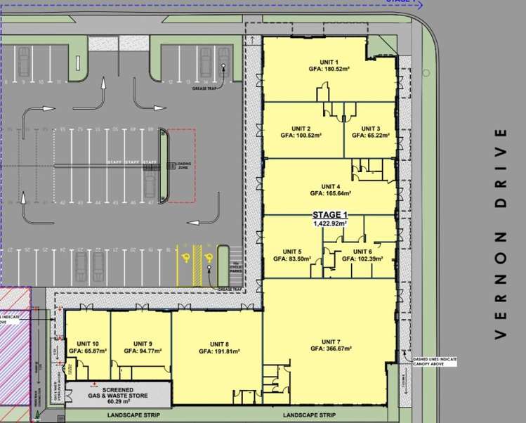
Stage 1 is completed and is now ready for occupation.
Only 3 sites remain. Sizes range from 90m2* - 192m2* with possibly larger floor plates available up to 1,500m2* in Stage 2, which is due for completion in December 2026*.
Let us know what you want, so we can see if your business will fit within the growing tenancy mix.
(* approx.)
For Lease: By negotiation + GST + outgoings
Call agent Paula Raine 027 221 4997 for further information and to arrange a viewing.
https://rwcchristchurch.co.nz/