Bayleys is pleased to present Option 3, 1/8 Islington Ave, Islington for lease,
Located in one of Waterloo Business Park’s most sought-after industrial precincts, 1/8 Islington Ave offers a versatile layout capable of being configured into a number of unit allocations to suit varying business needs.
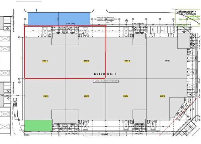
Option 3 is well suited to mid-sized operations, delivering a solid warehouse footprint complemented by modest office accommodation and generous canopy coverage for efficient, all-weather loading.
This layout provides practical functionality for businesses focused on operational efficiency, with covered access enhancing day-to-day logistics.
Positioned within the highly regarded Waterloo Business Park, the property benefits from excellent connectivity to the airport, key arterial routes, and surrounding industrial precincts.
Key Features:
• 1683sqm Warehouse
• 458sqm Yard
• 160sqm office/ amenities
• 309sqm of canopy cover
• 6 carparks – with more yard and carparks available as required
For a great site that would suit a wide range of businesses, reach out today for more information or to view this fantastic property and to discuss how we can make this site work for you.