Colliers is pleased to present 201 Halswell Road for lease. This brand-new to be built neighbourhood centre, anchored by Woolworths is superbly positioned in the rapidly growing southwestern Christchurch catchment of Halswell, poised to deliver for a currently underserviced market.
The development offers high visibility, ease of access via a key traffic light intersection connecting Aidanfield and Wigram, and excellent parking.
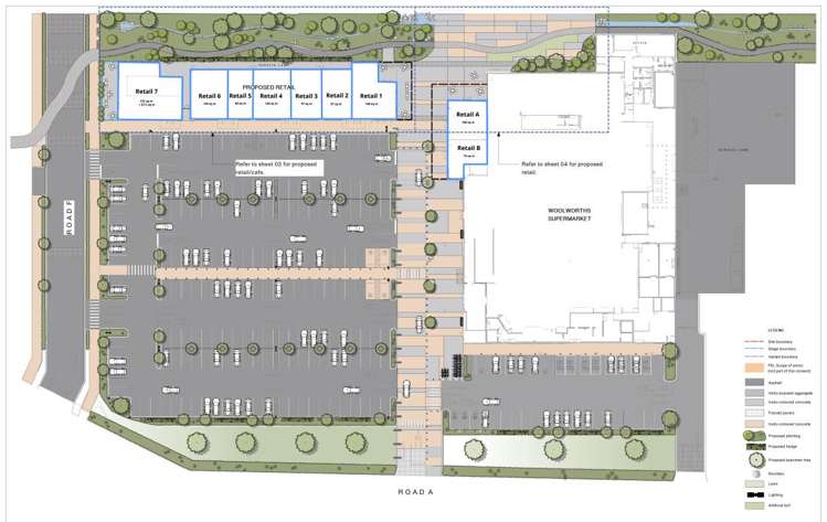
Tenancies range from 75sq m to 282.5sq m, suitable for food & beverage, retail, and convenience operators.
This new shopping destination is complemented by extensive residential developments nearby.
Contact Sole Agents Nick or Annabelle to discuss this exciting opportunity.
*Artist impressions only
Features:
* Anchored by brand new Woolworths
* Tenancies from 80 - 282.5 sq m
* Excellent customer parking and access
* Underserviced, rapidly growing catchment
* Due for completion Q3/2027