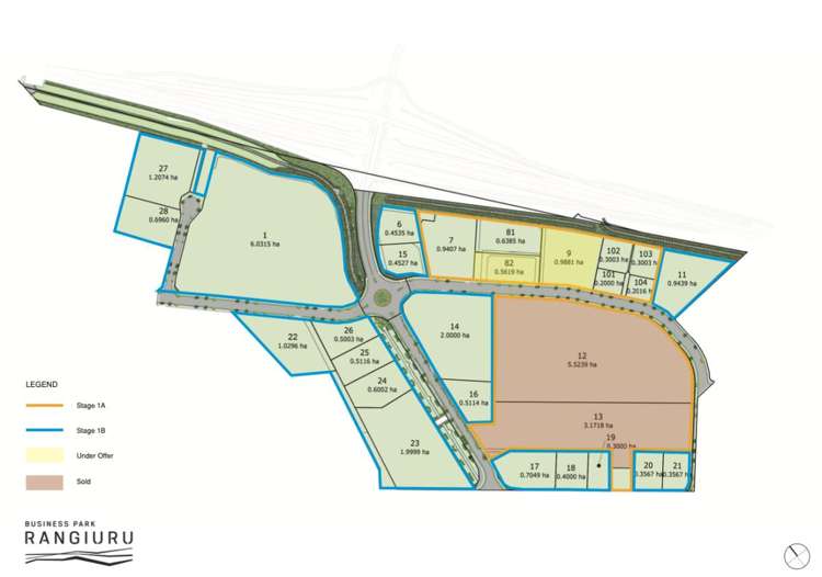
Positioned just 24km from the Port of Tauranga and directly connected to the Tauranga Eastern Link (State Highway 2), Rangiuru Business Park offers 148 hectares of premium industrial land across four development stages.
Stage 1 is selling now, with approximately 14 hectares available and the first titles issued in July 2025. Early buyers benefit from a choice of lot sizes, premium positioning, and the opportunity to partner with the developer on bespoke development solutions.
Call Rachel or a member of the Colliers team today to understand what lot size and location can be designed to suit your business needs.
Features:
* Industrial zoning
* Site sizes range from 2,000m2 and up to 6ha
* Pricing available on request
* 5-minute drive to the Pāpāmoa East Interchange
* Dedicated State Highway motorway interchange
* Varying stages and title assist with cash flow and project planning
* Golden Triangle - linking BOP, Hamilton, and Auckland
* In-house engineers, project managers, & property experts available to assist with feasibility, design, and construction
* Sites are built construction ready
* Partner with a proven developer
* Zoning allows for some commercial uses
* 20m building height permitted