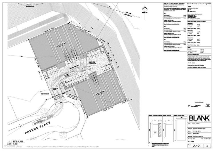
Colliers are pleased to offer this new complex for lease. Situated in a sheltered position in stage 3a of the Tauriko Business Estate, 45 Patene Place offers a green backdrop which rises to SH29 behind. A range of size options exist being 518m², 782m², 979m² or 1,300m².
Construction is complete and ready for its new occupants. Call Rachel today to understand which tenancy suits your needs.
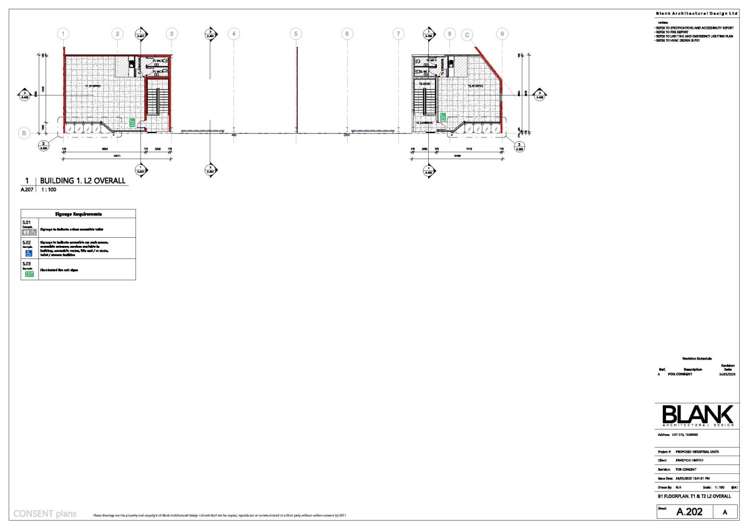
Tenancy 1
Warehouse Area: 682m²
Office Area: 100m²
Canopy Area (estimate):40m²
Total Area (excluding canopy): 782m²
Tenancy 2
Warehouse Area: 438m²
Office Area: 80m²
Canopy Area (estimate): 40m²
Total Area (excluding canopy): 518m²
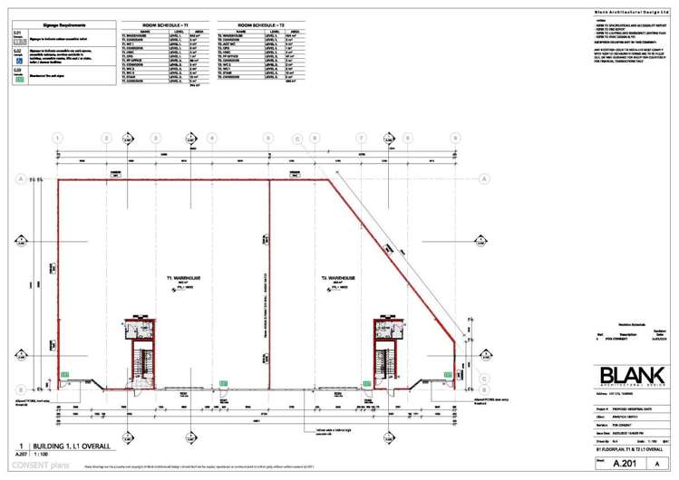
Tenancy 3 (Designed to accommodate a 10 tonne gantry crane if required)
Warehouse Area: 852m²
Office Area: 127m²
Canopy Area (estimate): 40m²
Total Area (excluding canopy): 979m²
Tenancy 1 & 2 Combined
Warehouse Area: 1,120m²
Office Area: 180m²
Canopy Area (estimate): 80m²
Total Area (excluding canopy): 1,300m²
Features:
* Available now
* Each unit has exclusive parking
* Warehouse areas: 518m²/782m²/979m²/1,300m²
* Construction complete
* High quality construction
* Plans available
* Tenancy 3 engineered for 10 tonne gantry crane
* Loading canopies