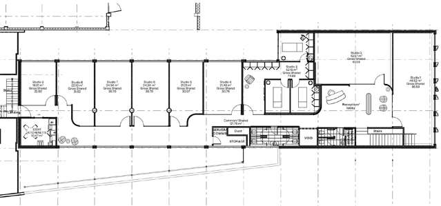
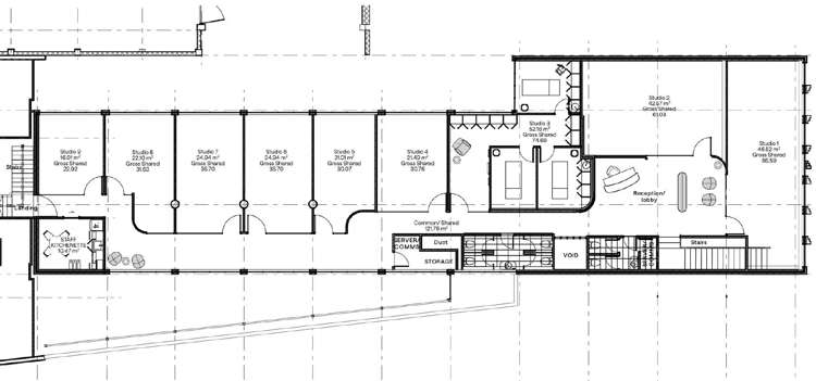
Available for lease is an exciting opportunity to be positioned in the heart of Takapuna, the first floor is undergoing a full refurbishment and is guaranteed impress. With a range of office suites ranging from 23 sqm - 69 sqm there will be an option to suit. Comprising of a welcoming reception from Hurstmere Road and premium common area studio can be tailored to your requirements.
The spatial layout balances shared and private zones, with individual suites tailored to the varying treatment needs of each specialist. By combining private therapy areas with collaborative spaces, the hub is designed to enhance both practitioner synergy and client comfort, establishing a harmonious retreat focused on holistic wellness and beauty.
Floor area: 23 sqm - 69 sqm (approx.)
Features:
- Premium fit-out
- Suites suitable for Beauty/Wellness & Offices
- High end shared amenities
- Excellent location in the heart of Takapuna
- Available Mid 2025
For more information and an appointment to view this property, please contact the agent at NAI Harcourts Cooper & Co today.