JLL is pleased to present to the market for lease, various tenancy's in 40 Hurstmere Road, Takapuna.
Key Features:
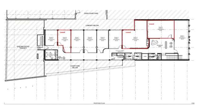
- Shared precinct for beauty & wellbeing specialists
- Common area bathrooms, reception, staff kitchenette, laundry & coffee station
- Various tenancy sizes available
- Indicative renders only
- Excellent positioning on Hurstmere Road (Level 1)
- Available Q2, 2025
- Situated above Eat Street laneway on Hurstmere road with all day sun exposure
The design of the hub creates an inspiring area where beauty and wellbeing specialists can operate together. The collective reception and amenities foster a sense of community while providing a welcoming entry experience for clients. The spatial layout balances shared and private zones, with individual suites tailored to the varying treatment needs of each specialist.
For more information regarding this tenancy, or to arrange a viewing - please contact your JLL leasing specialists below.