Positioned in the heart of the tightly held Remuera retail strip, 389–391 Remuera Road presents an exceptional leasing opportunity between Clonbern Road and St Vincent Avenue. The north-facing building enjoys strong natural light, excellent exposure to both Remuera Road and Victoria Avenue, and benefits from abundant surrounding street parking together with easy access to the New World public car park.
The property is set to undergo a comprehensive refurbishment, consistent with the landlord’s wider 1050 Precinct Remuera vision and neighbouring developments. The works will deliver a high-quality, contemporary presentation while retaining flexibility for incoming tenants.
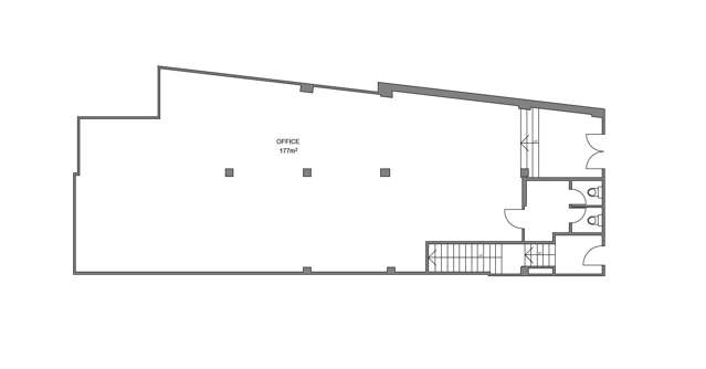
Convenient rear access via Clonbern Lane allows for efficient loading and servicing, enhancing functionality for a wide range of retail, hospitality, or service-based occupiers.
This is a rare opportunity to secure a high-profile position in one of Auckland’s most established and affluent retail precincts, within a building that will be presented to an exceptional standard.
Key features:
- Available April 2026
- Prime position on Remuera's retail strip
- Rear access via Clonbern Lane for easy loading and servicing
- Comprehensive refurbishment to a high standard