• The development timeline is in sync with Watercare capacity plans.
• Ongoing commercial construction in South Auckland highlights long-term value for developers and investors.
• Key site surveys, infrastructure assessments, and environmental considerations have been completed.
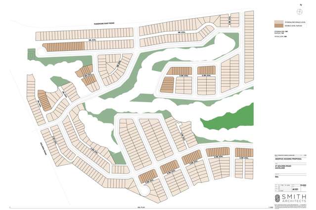
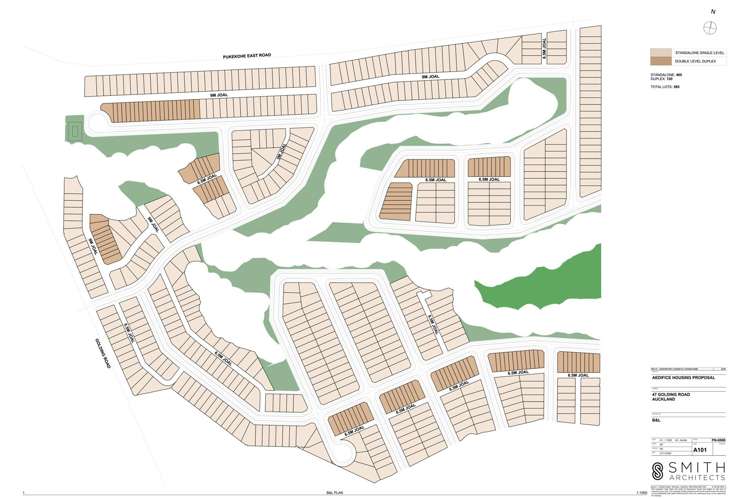
This significant landholding of approximately 27ha across two titles has recently been rezoned to Mixed Housing-Urban and represents a key component of Pukekohe's planned and fast-paced expansion.
The proposed development will incorporate generous green spaces, neighbourhood reserves, and network of interconnected walking and cycling pathways - designed to suit todays modern lifestyle expectations.
The location is less than 2km from Pukekohe CBD and amenities.
In real estate terms Pukekohe has continued to enjoy a strong demand for developable land for a number of years now. This is driven by a strong local economy and above average population growth on comparative terms.
With Auckland Council's planned changes to all Future Urban land, finding large parcels of land in high growth areas with the favourable zoning's is getting harder.
For more information or to request a comprehensive information pack, please don't hesitate to contact us.