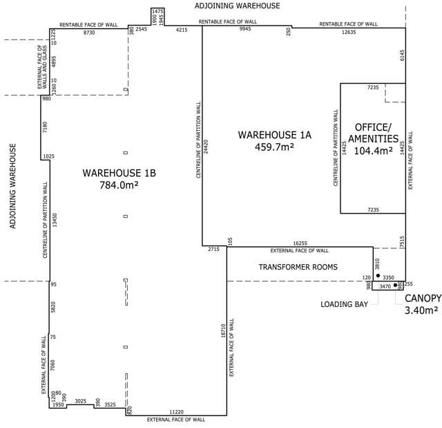
Key Areas:
- 1,243sqm warehouse
- 104sqm office
- 3sqm canopy
Site Features:
- Medium stud warehouse
- Access via 3 roller doors
- Minimal office
- Immediate proximity to SH1
- 750 kVA power supply
- Light Industry zoning
One of Auckland's highest performing industrial regions, East Tamaki is seeing a fresh wave of commercial and industrial development, bringing with it some of the largest corporates in the country. With solid access to SH1, this places the Auckland CBD, Port of Auckland, and Auckland Airport just 20km away. Coupled with efficient access to the railway and the Wiri inland port makes this a prime location for importing and exporting businesses. Backed by a strong workforce and a wide range of retail and other amenities means you and your staff will be well set up in East Tamaki.
Contact Matthew or Gabe today to discuss this opportunity or to arrange a viewing:
Matthew White
027 376 7073
[email protected]
Gabe Miguel
022 342 3649
[email protected]
Note: All prices are exclusive of outgoings and GST (unless otherwise stated).
All floor areas are approximate and boundary lines (when drawn) are indicative.
Black Haus Limited Licensed under the REAA 2008