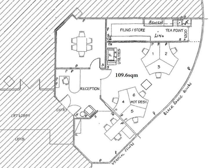
Approximately 109.60sqm north-facing tenancy in the heart of Broadway!
The tenancy is located on level 4 of the building and offers any incoming tenant an extremely efficient floor plate to work with. Currently, it is configured as an open plan workspace with a reception area, one private room, a board room and a kitchenette. With fantastic views, abundant natural light, exposed services, and onsite carparks, this is an opportunity that you must contemplate.
Key Features:
• 109.60sqm (approximately) high-quality office
• Open plan with exposed services
• Great natural light
• Up to five onsite car parks
Bayleys Commercial provide access to every leasing opportunity in Auckland – Get in touch with us for a bespoke market search tailored to your business requirements.
Agent details:
Ken Hu
021 11 77 288
[email protected]