• Ideal logistics hub in central Mt Wellington
• High stud warehouse with large canopy
• Close proximity to SH1 and main arterials
• High profile position on Great South Road
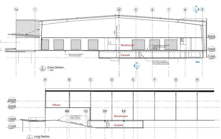
This is an exciting opportunity to occupy a brand-new industrial premises in one of Auckland's most desirable industrial precincts. The property features high stud warehouse, architectural office/showroom and amenities over two levels on Great South Road.
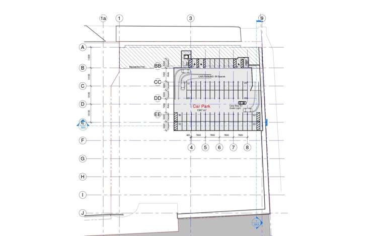
The warehouse is regular shaped with multiple roller doors and a large canopy providing good container devanning and yard options. Dual street access points, including a controlled intersection give large vehicle movements easy and safe traffic flow. The modern office and amenities are over two levels with great frontage to Great South Road will immediately increase the incoming tenant's profile. The flexible layout will allow the occupier to utilise the space as they desire with a showroom capability if required. Ample underground car parking for staff and visitors are provided off Great South Road with internal access directly into the office space.
The central Mt Wellington location is within minutes to State Highway 1 and local immenity including Sylvia Park.
This option wont last long.
James Valintine
021 023 71868
[email protected]
Sunil Bhana
021 938 660
[email protected]