Situated on New North Road, the tenancy enjoys fantastic street exposure and is strategically positioned to benefit from one of Auckland's well-established and growing residential and commercial catchments.
The location offers supreme convenience, placing you right next to the heart of the Mt Albert Village, meaning your staff and customers are just a short, easy walk away from essential amenities. This includes the major transport hub of the Mt Albert Train Station, numerous local bus stops, and a diverse range of retail shops, cafes, and services that contribute to a vibrant local environment.
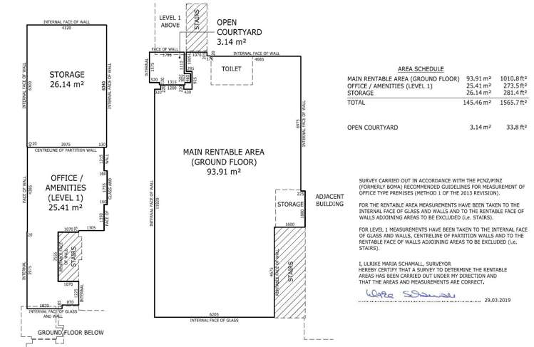
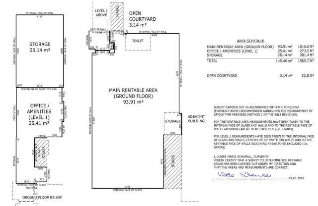
This offering is more than just a retail floor; it provides a highly functional layout that blends open customer-facing areas with essential back-of-house facilities, all while ensuring easy vehicle access and dedicated parking. Thanks to its versatile layout and high visibility, this tenancy is perfectly suited for a wide range of businesses seeking a strong community presence and excellent accessibility. The combination of open retail space, private rooms, and dedicated storage makes it ideal for service-based retail.
Key features:
• Versatile 145.46sqm retail tenancy with office area and storage room
• High profile with great street frontage
• Two Onsite car parks including in the lease
• Ample street parking
For more information or to arrange an inspection, call, text or email:
Ken Hu
M : 021 117 7288
E : [email protected]