- 2/11 Thatcher Street

Floorplan

+20
Pictures20
Floorplan1
Map
Data
Property data
Broadband available
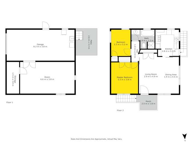
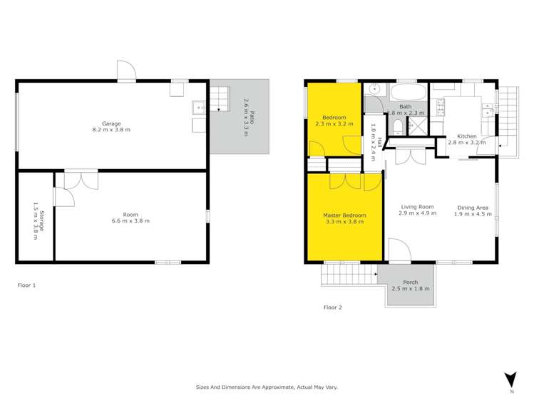
Floor area
136m²
Unitary Plan
Zone 60 Residential - Mixed Housing Urban Zone
Type of title
Unit Title
About the area

Mission Bay, Auckland City
Mission Bay is a suburb which lies within the Territorial Authority of Auckland, one of 269 residential suburbs which form the wider region. Mission Bay is the 97th largest suburb of Auckland in terms of the total number of residential housing stock.
Mission Bay provides a range of housing stock, with the earliest residential housing recorded in the area constructed between 1800 - 1809. The majority of the residential housing stock in the locality was constructed between 1960 - 1969.
Residential housing stock in Mission Bay is made up of approximately 96% residential housing and 4% residential investment housing properties.
Learn moreADVERTISEMENT
Similar properties for rent
























