Known for its fine dining and luxury strip retail, the suburb of Ponsonby is located on Auckland’s City Fringe, two kilometers west of the CBD. With an abundance of restaurants, cafes, art galleries, and premium brands being located along Ponsonby Road, there a few locations more desirable for commercial occupants. The suburb also provides excellent public transport coupled with access to main arterial routes and motorways. The prestige of the area is reflected in the retail occupants, both fashion and lifestyle paired with food & beverage operators. Notable examples include SPQR, Azabu, Karen Walker and Ruby Boutique.
Key features:
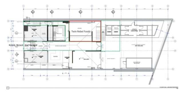
• Set up F&B space within Rose Alley
• Flexible terms ideal for short term leases or start up businesses
• Some fit out items included as part of fit out with potential to retain pizza oven
• Proximate to Woolworths Ponsonby, Grey Lynn Fire House and many other hospitality and retail businesses
• Ideal location for operator with delivery and pick up oriented businesses
• 25 sqm tenancy size with additional common area being a total of 32 sqm
For more information or to arrange a viewing please contact your JLL retail leasing specialists below.