The Todd Building is a prominent CBD office building located on the corner of Hunter Street and Customhouse Quay. It provides its tenants with excellent connection to the waterfront and CBD and boasts a large number of car parks. The Landlord has just completed lobby upgrade and updated end of trip facilities are planned.
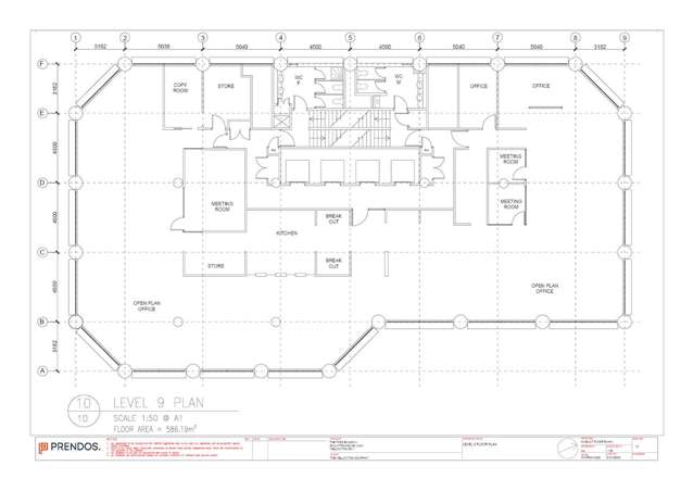
Level 9 is a well-appointed floor and a rare offering in this tightly-held building. The floor contains two offices, three meeting rooms, a variety of storage and breakout areas and a kitchen. The Landlord is very proactive and will work with tenants to configure the floor to suit their requirements.
Neighbouring tenants include: Todd, Annuitas, REA, Infrastructure Commission