Under construction until end of May 2026
Level 4 Tenancy 2 at Grant Thornton House offers a high-quality, landlord-provided turnkey office suite within one of Wellington CBD’s most prominent commercial buildings.
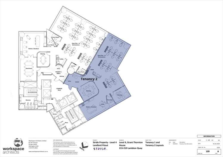
The tenancy comprises approximately 246 m² and is delivered unfurnished, featuring a kitchen and breakout area, a large boardroom, medium-sized meeting room plus open plan designed to support collaborative and focused work styles for over 20 staff.
Refurbished on-floor bathrooms and a modernised common area lobby further enhance the overall presentation.
Situated at 215 Lambton Quay, the building occupies a prime position on Wellington’s Golden Mile, with excellent access to public transport, close proximity to the Railway Station and convenient connections to the government precinct and waterfront. Occupying a prominent corner site, the building benefits from exceptional natural light and views. Grant Thornton House is a well‑known landmark office tower that has undergone significant refurbishment, providing a professional and contemporary workplace environment.
This tenancy will appeal to professional services firms, advisory businesses, and corporate occupiers seeking a central CBD location with a ready-to-occupy fit-out.
Please note all areas and values are approximate only.
For further information or to arrange an inspection contact:
Jeremy Langford on 021 278 0700 or email [email protected]
Steve Maitland on 021 726 200 or email [email protected]
Features:
* Turnkey landlord fit-out
* A Grade office building
* Central Lambton Quay address
* Large boardroom
* New end-of-trip facilities
* Ground floor cafe