- 26 Sefton Street

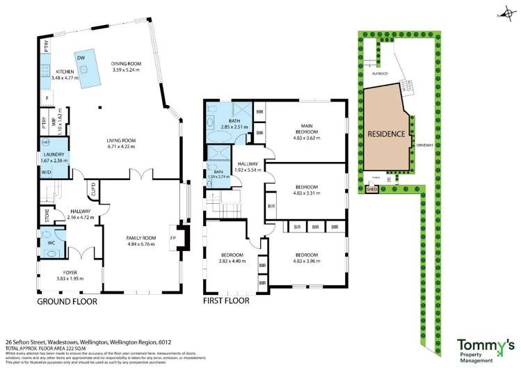
Floorplan

+17
Pictures17
Floorplan1
Map
Data
Property data
Broadband available
Floor area
226m²
Land area
627m²
Type of title
Freehold
About the area

Wadestown, Wellington City
Wadestown is a suburb which lies within the Territorial Authority of Wellington, one of 52 residential suburbs which form the wider region. Wadestown is the 18th largest suburb of Wellington in terms of the total number of residential housing stock.
Wadestown provides a range of housing stock, with the earliest residential housing recorded in the area constructed between 1900 - 1909. The majority of the residential housing stock in the locality was constructed between 1920 - 1929.
Residential housing stock in Wadestown is made up of approximately 89% residential housing and 11% residential investment housing properties.
Learn moreADVERTISEMENT
Similar properties for rent
























