Step off the beaten path and into something special-15 Edward Street offers a rare chance to claim a refurbished character office in one of Wellington's most vibrant laneways.
Nestled just off Victoria Street and moments from Manners Street, this top-floor tenancy blends urban charm with modern functionality.
Whether you're a design studio, tech startup, or creative agency, this space has the kind of personality that inspires.
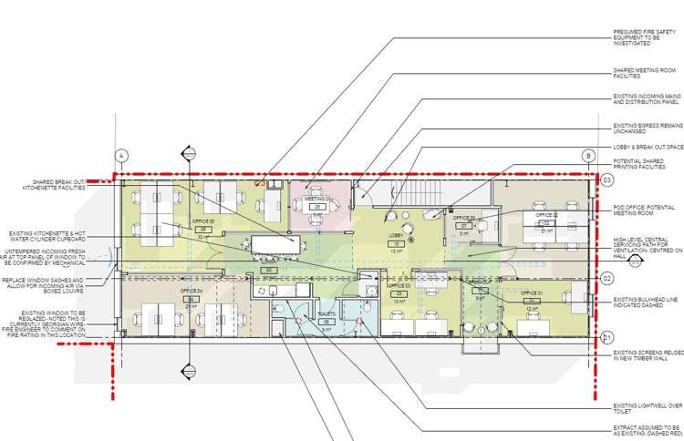
Think exposed features, open-plan flow, and a central kitchen zone that doubles as a social hub.
It's the kind of office that makes Monday feel like less of a chore.
Highlights:
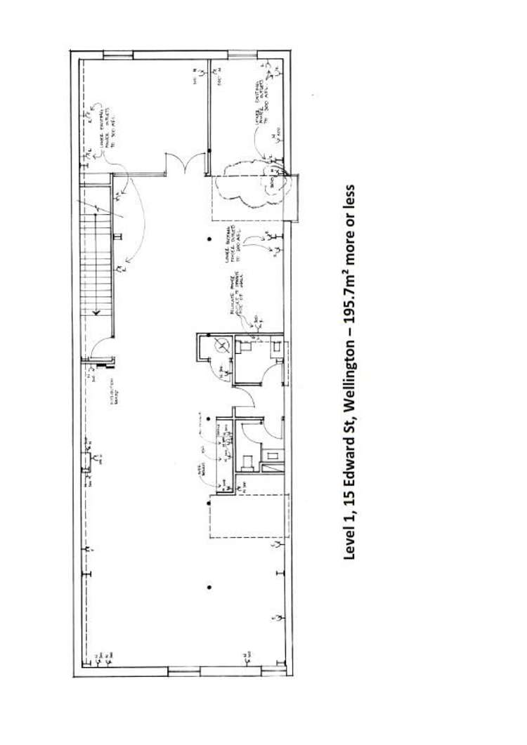
• Approx. 180m² of cool, character-filled workspace
• Whole top floor with great natural light
• Open-plan layout with central kitchen and boardroom
• Surrounded by cafes, gyms, bars, and public transport
• Refurbished with flair-something a little different
• Option to subdivide if needed
Available now. If you're after a space that stands out and supports a team of 10-15, this could be your next HQ.
Call the listing agents to arrange a viewing and experience the vibe for yourself.