- 3/49 Mandalay Terrace


+15
Pictures15
Map
Data
Property data
On OneRoof
30 days
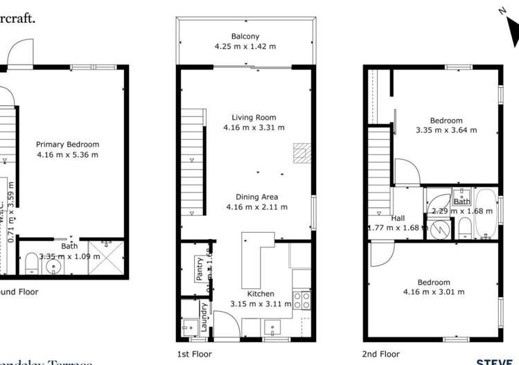
Property Type
Townhouse
Floor Area
90m²
Decade Built
1970s
About the area

Khandallah, Wellington City
Khandallah is a suburb which lies within the Territorial Authority of Wellington, one of 52 residential suburbs which form the wider region. Khandallah is the 6th largest suburb of Wellington in terms of the total number of residential housing stock.
Khandallah provides a range of housing stock, with the earliest residential housing recorded in the area constructed between 1890 - 1899. The majority of the residential housing stock in the locality was constructed between 1970 - 1979.
Residential housing stock in Khandallah is made up of approximately 96% residential housing and 4% residential investment housing properties.
Learn moreADVERTISEMENT
Similar properties for rent






















