Your opportunity to secure space in a new development planned for Kenepuru Landing, offering modern, purpose-built space positioned on the corner of Bluff Road and Karearea Avenue. Designed to service the surrounding residential catchment, this is a practical, well-considered scheme suited to a range of commercial users.
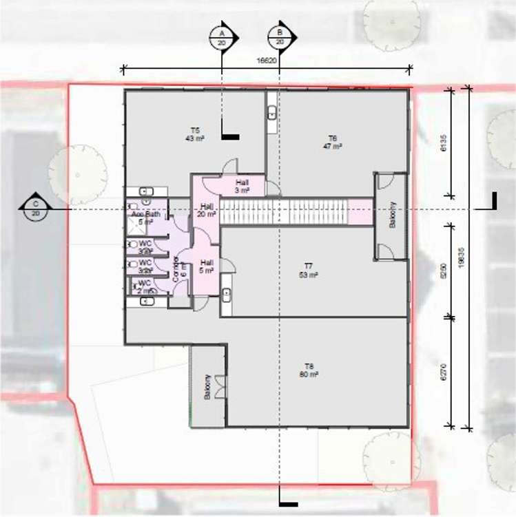
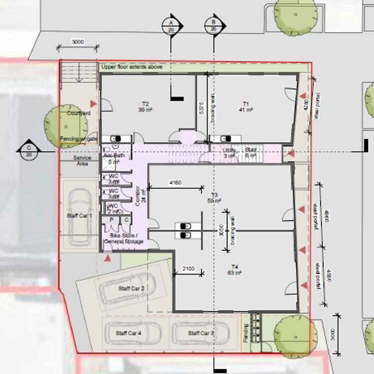
The development provides a series of adaptable tenancies with flexible tenancy options available, with floor areas ranging from approximately 40sqm to 120sqm. Each space will be configured with a functional layout, including open-plan areas, back-of-house and amenities, along with good natural light and multiple entry points. Positioned within a growing neighbourhood centre environment, the property is well placed to benefit from ongoing residential expansion in the wider Kenepuru precinct.
Key features:
• Flexible tenancy options – 40sqm to 120sqm available.
• Brand new development with modern finishes
• Strong street presence with multiple access points
• Located within a growing residential catchment