• Construction to be completed early 2026
• Suitable for a variety of businesses
• Prime Cambridge location
• Surrounded by high profile neighbours
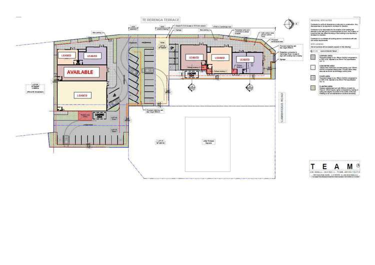
Building 1 - LEASED
Building 2 - LEASED
Building 3 - LEASED
Building 4 - AVAILABLE - 156.4sqm (approx.)
This brand new commercial build, crafted by a renowned Waikato construction company, offers an exceptional opportunity to lease within a high growth 45 lot residential subdivision.
Neighbours include St Peters School, Kelly Rd Cambridge Lodge, Te Awa Lifecare Retirement Village, Avantidrome, Cambridge Family Health, and Unichem Pharmacy; all ensuring strong foot traffic and local demand.
Act now - this opportunity won't last! Contact Willem Brown today for further details.