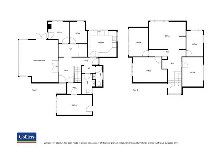
A standout two-level office in a tightly held, professional pocket just moments from the CBD. With approximately 208.7m² across ground floor (115.5m²) and first floor (93.2m²), the layout provides a strong mix of meeting space, offices, kitchen and amenities—ideal for professional services wanting a high-quality “house-style” workplace with genuine on-site parking. The location not only boasts profile, but presence and located with easy access to main arterial routes and within a handy walk to the city centre, new courthouse or for those energiser bunnies the many walk / running locations like domain or whakairo estray. New vendor creating an affordable option and terms by negotiation – what are you waiting for? Call Duncan or Dan today to arrange a viewing.
Features:
* Annual Rent: $56,349 + GST & OPEX
* Approx. 208.7m² of office across two levels
* 6 on-site car parks @ $40/wk each (more may be available if required)
* Mix of open plan + individual offices plus a large meeting room (per floor plan)
* Easy access and high profile
* Prime city-fringe location—easy CBD access with the benefit of on-site parking
* Available now