- 1 Broomlea Street

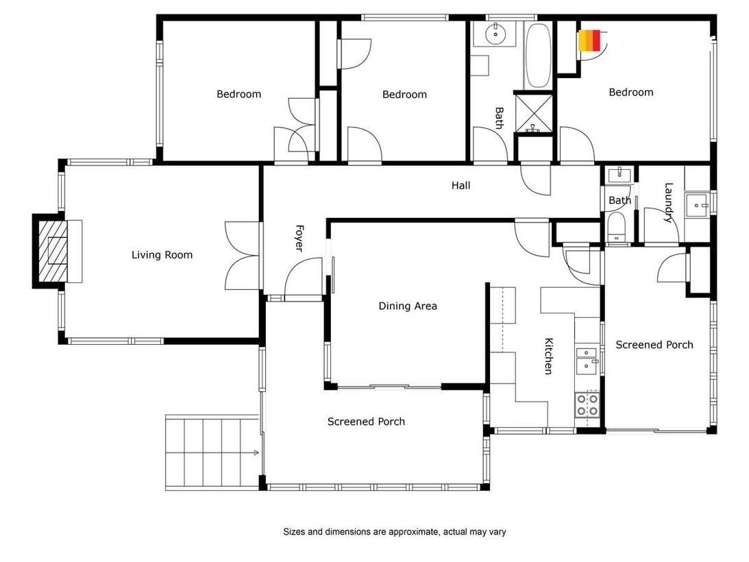
Floorplan

+19
Pictures19
Floorplan2
Map
Data
Property data
Broadband available
Floor area
129m²
Land area
764m²
Type of title
Freehold
About the area

Wakari, Dunedin City
Wakari is a suburb which lies within the Territorial Authority of Dunedin, one of 97 residential suburbs which form the wider region. Wakari is the 12nd largest suburb of Dunedin in terms of the total number of residential housing stock.
Wakari provides a range of housing stock, with the earliest residential housing recorded in the area constructed between 1880 - 1889. The majority of the residential housing stock in the locality was constructed between 1940 - 1949.
Residential housing stock in Wakari is made up of approximately 93% residential housing and 7% residential investment housing properties.
Learn moreADVERTISEMENT
Similar properties for rent























