This building has a high profile position on State Highway 1 (Matthews Ave) and is in a desirable location.
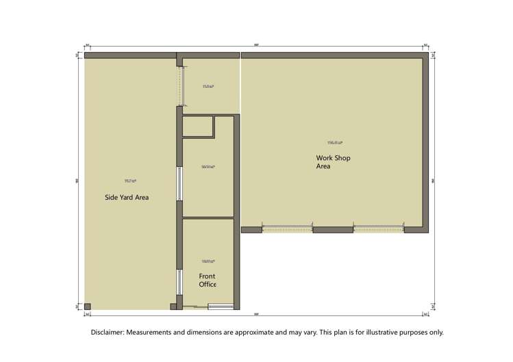
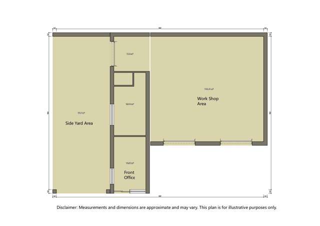
It includes two dedicated office spaces, features a generous workshop with dual double door access. On the side of the property we have an uncovered yard complete with gated access.
Approx. 210m2 workshop, office, lunchroom space plus small lock-up yard.
Grow your business! Come check it out!
Contact Camelia Te Wake 021 176 4527 or Gary Steed 027 414 1725 for a viewing or more information.