- 585 Lower Queen Street
Last sold: Oct 2021


+15
Pictures
Map
585 Lower Queen Street, Richmond, Tasman
Last sold Oct 2021
Property insights
OneRoof estimate
OneRoof mentions
This property was last sold in 2021 for $720,000. OneRoof now estimates this property to be $650,000 and its latest rating valuation by Tasman council is $600,000 as of 2023. There are 128 properties for sale nearby. More property estimates in Richmond are available.
Similar properties for sale
Property data
Type of title
Freehold
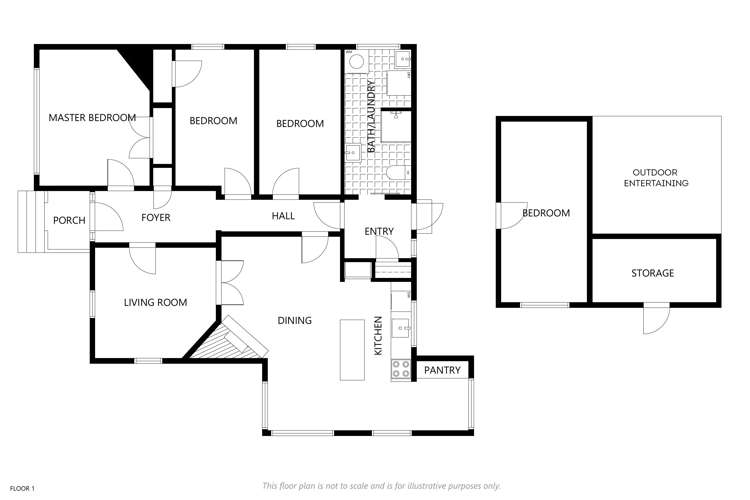
Floor area
140m²
Land area
1,576m²
Decade of Built
1910s
ADVERTISEMENT
About the area
Market insights
Insights for all bedroom homes in Richmond
Property type
All property types
Bedrooms
All
Time (yrs)
5 yrs
Home services
Fortnightly Repayments
Loan term
Total interest
Interest rate
Total cost
Press calculate to work out your mortgage repayments and how quickly you can pay off your loan.


On your side with these great benefits
Natural disaster cover for earthquakes, natural landslips, hydrothermal activity, tsunami, natural fires, & volcanic activity.
Temporary accommodation for you, your family, and your pets if you need to be evacuated from your home.
Get replacement keys and locks if yours get lost or stolen and pay no excess.
Access to AMI HomeHub, our first-class home repairer that brings together a team of experts to take care of your home claim repairs from start to finish.
Learn about these great benefits and more
*Exclusions and limitations apply. Talk to us about these or refer to the full policy document which can be found on our website.

Richmond, Tasman
Richmond is a suburb which lies within the Territorial Authority of Tasman, one of 32 residential suburbs which form the wider region. Richmond is the largest suburb of Tasman in terms of the total number of residential housing stock.
Richmond provides a range of housing stock, with the earliest residential housing recorded in the area constructed between 1880 - 1889. The majority of the residential housing stock in the locality was constructed between 1990 - 1999.
Residential housing stock in Richmond is made up of approximately 98% residential housing , 1% residential investment housing and 1% lifestyle properties.
Learn moreADVERTISEMENT





























