- 26 Heaphy Street

Floorplan

+35
Pictures35
Floorplan1
Map
Data
Property insights
OneRoof estimate
OneRoof mentions
Listed for sale on OneRoof for 16 days (last updated on 27 March) and was last sold in 2016 for $440,000. OneRoof now estimates this property to be $815,000 and its latest rating valuation by Tasman council is $720,000 as of 2023. This property has appeared in 34028 searches in the last 30 days. There are 35 4-bedroom properties for sale nearby. There are 127 properties for sale in Richmond.
Similar properties for sale
Property data
On OneRoof
15 days
Property Type
House
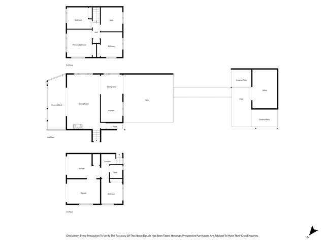
Floor Area
161m²
Land Area
683m²
About the area
Market insights
Insights for all bedroom homes in Richmond
Property type
All property types
Bedrooms
All
Time (yrs)
5 yrs
Home services
Fortnightly Repayments
Loan term
Total interest
Interest rate
Total cost
Press calculate to work out your mortgage repayments and how quickly you can pay off your loan.


On your side with these great benefits
Natural disaster cover for earthquakes, natural landslips, hydrothermal activity, tsunami, natural fires, & volcanic activity.
Temporary accommodation for you, your family, and your pets if you need to be evacuated from your home.
Get replacement keys and locks if yours get lost or stolen and pay no excess.
Access to AMI HomeHub, our first-class home repairer that brings together a team of experts to take care of your home claim repairs from start to finish.
Learn about these great benefits and more
*Exclusions and limitations apply. Talk to us about these or refer to the full policy document which can be found on our website.

Richmond, Tasman
Richmond is a suburb which lies within the Territorial Authority of Tasman, one of 32 residential suburbs which form the wider region. Richmond is the largest suburb of Tasman in terms of the total number of residential housing stock.
Richmond provides a range of housing stock, with the earliest residential housing recorded in the area constructed between 1880 - 1889. The majority of the residential housing stock in the locality was constructed between 1990 - 1999.
Residential housing stock in Richmond is made up of approximately 98% residential housing , 1% residential investment housing and 1% lifestyle properties.
Learn moreADVERTISEMENT

















































