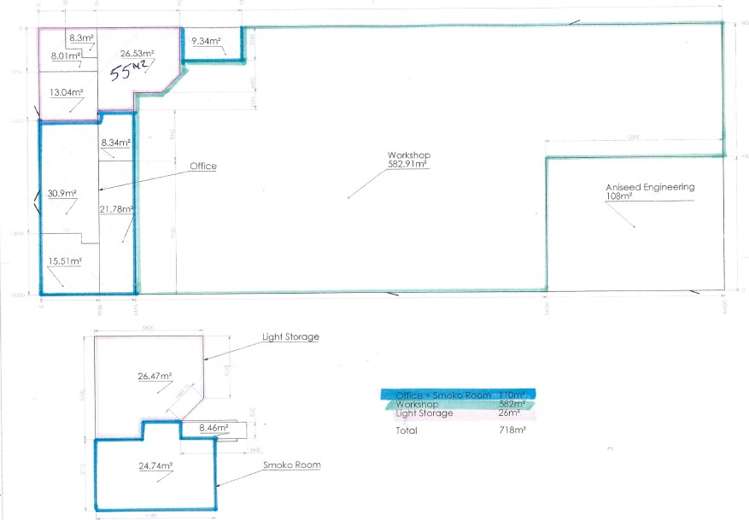
New to the market, this large affordable open plan warehouse in the tightly held Factory Road industrial hub of Brightwater is now available for lease.
The Landlord wants this property leased and has reduced the rent to $70,000 plus GST & Outgoings for the first year of the lease. You won't find a more affordable large building in the region.
Flexibility is key with any property and this open plan gem provides it for any medium to large commercial / industrial business to just start operating from day one.
Key Features:
• Warehouse size 600m2
• Recently refurbished offices & mezzanine
• Secure Yard, fully fenced with large gate
• 3 -phase power
• Multiple Roller doors
• Parking or Yard space for up to 12 vehicles
• Open plan - options a plenty to personalise the space to your business requirements
• Signage opportunities
• Affordable rental of $70,000 plus GST & Outgoings
• Easy access for large trucks including large turning circle for easy deliveries & offloading
• Land share of 4142 m2
Call Craig today for a viewing or further details as this affordable beauty won't be available for long.