Secure a rare, high-quality industrial lease in the heart of Blenheim's sought-after Flight Industrial Park.
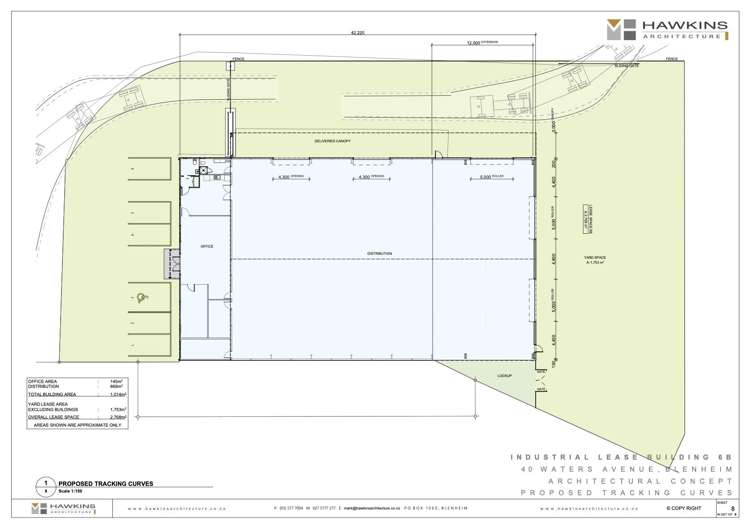
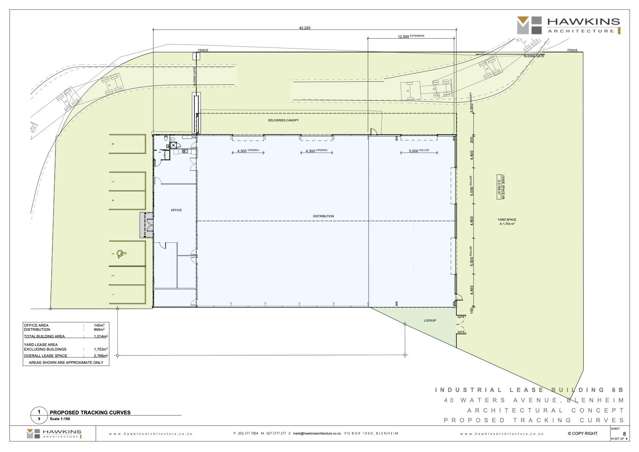
Currently undergoing significant upgrades, the existing warehouse will be transformed and extended to a substantial 1,014sqm (more or less) high-stud facility, delivering a modern, fit-for-purpose industrial space.
The upgraded warehouse will feature a new 280sqm (more or less) eastern extension, three new 4.3m wide x 4.5m high roller doors under a northern deliveries canopy, plus two additional 5m wide x 5.8m high roller doors on the east, providing outstanding multi-directional access and operational efficiency.
A fully fenced and secure 1,753sqm (more or less) yard will include dedicated drive-through entrances from both the west and north, perfectly configured for heavy vehicle movement and logistics.
Supporting the operation is a well-presented 145sqm (more or less) office and amenities block with polished concrete floors, plus six on-site car parks including one accessibility park.
Zoned Industrial 2, this property is ideally suited to warehousing, distribution, manufacturing, or large-scale storage tenants seeking premium functionality in a prime location.
Key Features
• Upgraded and extended 1,014sqm (more or less) high-stud warehouse with major access enhancements
• 1,753sqm (more or less) fully secure yard with planned west and north drive-through access
• Modern 145sqm (more or less) office/amenities plus northern deliveries canopy
For Lease $159,900 plus GST and Outgoings
Available from 01 July 2026
For more information or to view, contact the exclusive agents Grant Thorpe or Zak Thorpe